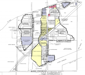
Clients & Projects
RWCI represents multiple landowner groups and Developer clients; in varying capacities.
RWCI client list and roles include:
Our clients are our number one priority, and we take pride in our projects. Since our establishment in 2014, we have completed the development of numerous lots, including property in Pickering, Oshawa, and Whitby — some of which we have highlighted below.






